San Gregorio. Ufficio di rappresentanza in palazzo Liberty.
€ 10.833
Milano, zona Buenos Aires
Dettagli
Contratto Affitto
Rif LCDU167
Prezzo € 10.833
Provincia Milano
Comune Milano
Zona Buenos Aires
Indirizzo Via San Gregorio 29">
Vani 6
Classe energetica
F (DL 90/2013)
EPgl,nren 65 kwh/m2 anno
Riscaldamento centralizzato
Condizioni ottime condizioni
Spese condominiali € 1.250
Consistenze
| Descrizione | Superficie | Sup. comm. |
|---|---|---|
| Principali | ||
| Ufficio - 3° piano | 325 Mq | 325 Mqc |
| Totale | 325 Mqc | |
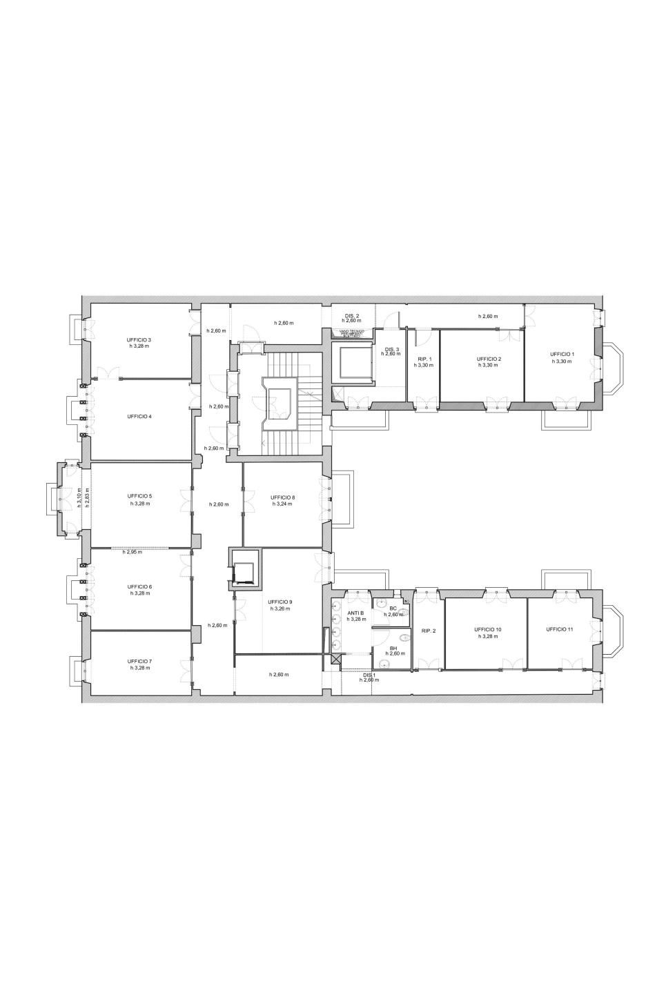
Via San Gregorio/Porta Venezia. In palazzo primi 900 di alta rappresentanza proponiamo al 3° piano su 4, spazio ad uso ufficio di 325 mq. quadri esposto, molto luminoso e silenzioso. Soffitti alti con modanature, pavimenti in seminato e parquet.
L'ufficio ha un ampio ingresso è suddiviso in 10 locali, due servizi zona break, balconi.
Dettagli: riscaldamento centralizzato, acqua calda e aria condizionata canalizzata autonoma. Pavimenti in seminato originale e parquet. Soffitti alti. Cablato. Servizio di portineria a orario continuato.
Posizione strategica vicinanze MM Porta Venezia/Lima/Repubblica e Stazione Centrale.
Attualmente occupato visite con preavviso. Disponibile da Febbraio 2026.
Canone mensile Eu. 10.833 oltre spese condominiali Eu. 1.250 salvo conguaglio.
Le informazioni e i dati qui riportati hanno valore puramente indicativo e non hanno valore contrattuale.
Siamo una realtà immobiliare consolidata specializzata nell'intermediazione sia in Italia e all'estero. Abbiamo una clientela referenziata e fidelizzata a cui offriamo la nostra professionalità, passione e cordialità con risposte immediate, offrendo servizi esclusivi e personalizzati. Siamo costantemente alla ricerca di immobili che valutiamo gratuitamente sia per la vendita che per la locazione. Trattiamo diverse tipologie immobiliari: residenziali, commerciali, uffici, ville e immobili in zone turistiche. Vi aspettiamo in Via Larga, 6, a due passi dal Duomo.
L'ufficio ha un ampio ingresso è suddiviso in 10 locali, due servizi zona break, balconi.
Dettagli: riscaldamento centralizzato, acqua calda e aria condizionata canalizzata autonoma. Pavimenti in seminato originale e parquet. Soffitti alti. Cablato. Servizio di portineria a orario continuato.
Posizione strategica vicinanze MM Porta Venezia/Lima/Repubblica e Stazione Centrale.
Attualmente occupato visite con preavviso. Disponibile da Febbraio 2026.
Canone mensile Eu. 10.833 oltre spese condominiali Eu. 1.250 salvo conguaglio.
Le informazioni e i dati qui riportati hanno valore puramente indicativo e non hanno valore contrattuale.
Siamo una realtà immobiliare consolidata specializzata nell'intermediazione sia in Italia e all'estero. Abbiamo una clientela referenziata e fidelizzata a cui offriamo la nostra professionalità, passione e cordialità con risposte immediate, offrendo servizi esclusivi e personalizzati. Siamo costantemente alla ricerca di immobili che valutiamo gratuitamente sia per la vendita che per la locazione. Trattiamo diverse tipologie immobiliari: residenziali, commerciali, uffici, ville e immobili in zone turistiche. Vi aspettiamo in Via Larga, 6, a due passi dal Duomo.
Video
Richiedi maggiori informazioni
Mappa
Zoom della mappa
Apri con:
Apple Maps
Google Maps
Waze
Contattaci
Duomo Case srl
Via Larga, 6 20122 MILANO (MI)
Via Larga, 6 20122 MILANO (MI)
P.IVA: 07678020962
+39 0236736191





